MONFORTE & MARCO
Arquitectos

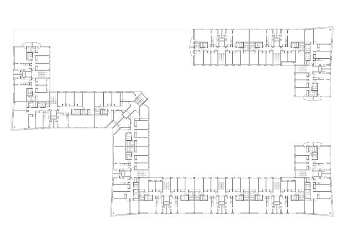
  • Edificio de 87 viviendas de protección oficial en Arroyo Culebro. Leganés.
  • Edificio de 87 viviendas de protección oficial en Arroyo Culebro. Leganés.
  • Edificio de 87 viviendas de protección oficial en Arroyo Culebro. Leganés.
  • Edificio de 87 viviendas de protección oficial en Arroyo Culebro. Leganés.

Proyecto:


Situación:

Arroyo Culebro. Leganés. Madrid.

icono flecha Anterior Ant / Sig Proyecto icono flecha siguiente

2011Copyright © Monforte-Marco arquitectos - C/ Santa Isabel nº 2. 2ºA. 28911, Leganés | Tel. 916 948 889 | Contacto: santiago@monforte-marco.com - martin@monforte-marco.com
Política de cookies | Nota legal

Uso de cookies

Este sitio web utiliza cookies para obtener datos estadísticos de la navegación de sus usuarios. Si continúas navegando, consideramos que aceptas su uso. Si quieres, puedes cambiar tus preferencias o ampliar esta información, pinchando aquí. Política de cookies.

ACEPTAR
Aviso de cookies