



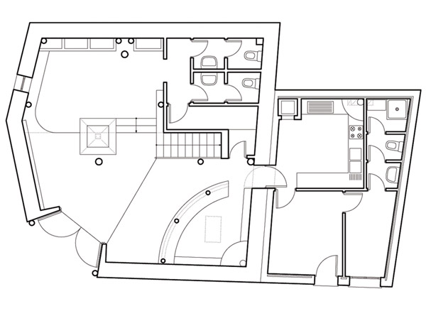
Reforma y acondicionamiento
Alameda del Valle. Madrid.
2011Copyright © Monforte-Marco arquitectos - C/ Santa Isabel nº 2. 2ºA. 28911, Leganés | Tel. 916 948 889 | Contacto: santiago@monforte-marco.com - martin@monforte-marco.com
Política de cookies | Nota legal
Este sitio web utiliza cookies para obtener datos estadísticos de la navegación de sus usuarios. Si continúas navegando, consideramos que aceptas su uso. Si quieres, puedes cambiar tus preferencias o ampliar esta información, pinchando aquí. Política de cookies.
ACEPTAR
